Raumwunder mit 5-Zi., schönem Gartenanteil und Gartenhaus im EG, 133,83 qm | Haus B









- Objektart
- Wohnung
- Objekttyp
- Erdgeschoss
- Vermarktungsart
- Kauf
- PLZ
- 79365
- Ort
- Rheinhausen
- ImmoNr
- 0150_WHG-B.01
- Wohnfläche
- 133,83 m²
- Nutzfläche
- 12,30 m²
- Anzahl Zimmer
- 5
- Anzahl Badezimmer
- 2
- Kaufpreis
- 649.027,00 €
- Baujahr
- 2026
- Endenergiebedarf
- 9,9 kWh/(m²a)
- Energieausweis
- Bedarfsausweis
- Energieausweis gültig bis
- 12.03.2035
- Energieeffizienzklasse
- A+
- wesentlicher Energieträger
- Elektro
Beschreibung
WOHNPARK RHEINHAUSENUrbanes Leben im ländlichen Raum! Auf dem ca. 6.732qm großen Grundstück der ehemaligen Grundschule Rheinhausen entsteht in 2 Bauabschnitten der Wohnpark Rheinhausen.
Insgesamt erstellen wir fünf repräsentative Gebäude um einen zentralen Spiel-Treff-Platz mit insgesamt 77 Wohnungen und einer gemeinschaftlichen Tiefgarage. Die dreigeschossigen Gebäude mit zusätzlichem Attikageschoss sind optimal in das Ortsbild eingebunden und geben ausreichend Freiraum. Insbesondere die modernen Penthouse-Wohnungen geben einen freien Blick Richtung Schwarzwald im Osten und Vogesen im Westen. Die Grundschule, der Kindergarten, der REWE Supermarkt oder das Gesundheitszentrum sind fußläufig erreichbar.
ERSTER BAUABSCHNITT (HAUS A+B)
Im ersten Bauabschnitt entstehen die Häuser A und B mit insgesamt 34 attraktiven 2 bis 5 Zimmer Eigentumswohnungen und Wohnflächen von 44 bis 176 Quadratmetern.
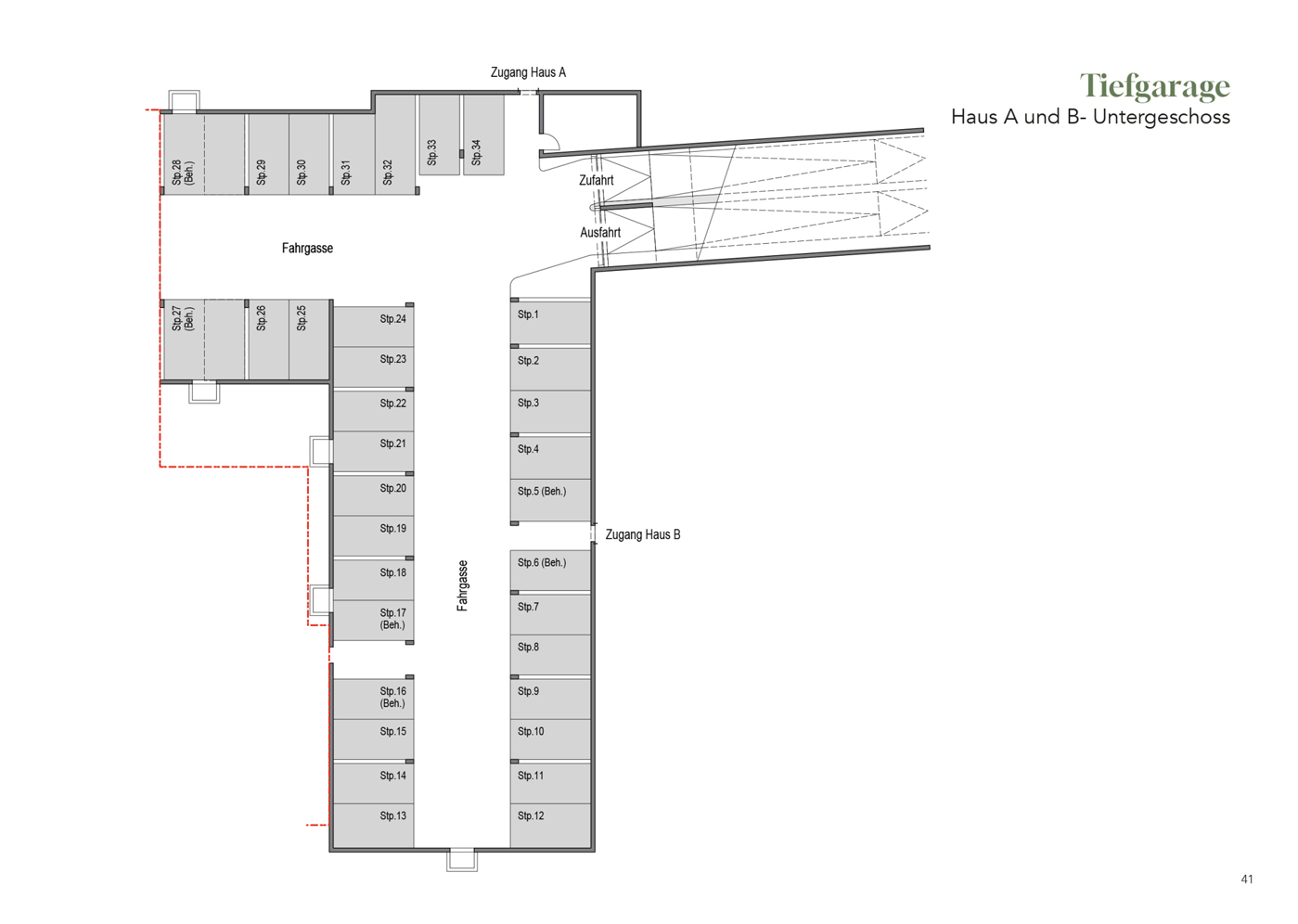
Jeweils 3 Vollgeschosse mit einem zusätzlichen Attikageschoss bieten durchdachte Raumaufteilungen, große Balkone bzw. Terrassen und praktische Stellflächen. Die gemeinsame Tiefgarageneinfahrt von Seiten der Schulstraße bietet durch separate Zu- und Ausfahrt einen sicheren und bequemen Zugang. Die Müllräume und Fahrradabstellplätze sind ebenso bestens integriert.
Die Zuwegung zu den einzelnen Gebäuden vermittelt eine einladende Atmosphäre. Im Innenbereich des Wohnparks Rheinhausen entsteht ein nachbarschaftlicher Treffpunkt mit durchdacht angelegten Wegeführungen und Grünbereichen, Sitzgelegenheiten und einem Spielplatz.
Die Privatgärten der Erdgeschosswohnungen fügen sich wohltuend ein und bieten ausreichend Privatsphäre.
Zu allen weiteren Details stehen wir Ihnen jederzeit persönlich zur Verfügung und freuen uns über Ihre Kontaktaufnahme.
Ein Modell der Wohnanlage im Maßstab 1:100 steht Ihnen ebenfalls zur Ansicht bereit.
Lage
Eingebettet zwischen Schwarzwald, Kaiserstuhl und Vogesen liegt die Gemeinde Rheinhausen im nördlichen Breisgau mit insgesamt ca. 4.300 Einwohnern. Der Ort besteht aus den beiden inzwischen zusammen gewachsenen Orten Niederhausen und Oberhausen. Das Wachstum der Einwohnerzahl in den letzten Jahren hat zu einer starken Verbesserung der Infrastruktur in nahezu allen Lebensbereichen geführt.Die neue Grundschule, das Bürgerhaus mit Rathaus und Bürgerbüro, einem weiteren neuen modernen Kindergarten oder das zentrale Gesundheitszentrum sind deutliche Zeichen dieses Wandels. Seniorenbetreuung, über 20 Vereine in den Bereichen Sport und Kultur, ein Wochenmarkt und vor allem eine sehr gute Versorgung mit Lebensmittelgeschäften prägen Rheinhausen als Vorzeigeort in der Region.
SPORT UND FREIZEIT
Rheinhausen kann gleich mit mehreren Naturschutzgebieten aufwarten, die zu den schönsten in Süddeutschland zählen. Vor allem das Naturschutzgebiet Taubergießen ist mit seiner artenreichen Tier- und Pflanzenwelt ein Anziehungspunkt. Traumhafte Rad- und Wanderwege führen durch die erholsame Natur. Gewachsene Sport- und Musikvereine bieten eine Vielzahl von Möglichkeiten.
ANBINDUNG
Rheinhausen ist ein günstiger und zentraler Wirtschafts- und Tourismusstandort in unmittelbarer Nähe zum Europa-Park mit idealer Anbindung an das benachbarte Elsass und die Schweiz. Über die nahe gelegene A5 ist Rheinhausen mit dem PkW innerhalb von 20 – 30 Minuten an die regionalen Zentren Freiburg, Lahr und Offenburg angebunden.
Der öffentliche Nahverkehr bringt sie stündlich innerhalb von 10 Minuten an den Bahnhof in Herbolzheim. Von dort aus gelangen sie innerhalb von 20 Minuten in die Freiburger Innenstadt oder innerhalb einer Stunde nach Basel im Süden oder Karlsruhe im Norden. Mit dem Fahrrad oder Bus/Bahn sind die Kinder innerhalb von knapp 20 Minute an den weiterführenden Schulen in Herbolzheim oder Kenzingen.
Karte
Ausstattung
SICHERHEIT- Gegensprechanlage mit optionaler Videoüberwachung
- mehrfache Verriegelung der Wohnungseingangstüren
- gut ausgeleuchteter Hauseingangsbereich mit Briefkastenanlage
BARRIEREARMES WOHNEN
- Rollstuhlgerechter Aufzug von der Tiefgarage in alle Wohnebenen
- ebenerdiger Zugang von der Straße zum Hauseingangsbereich
NACHHALTIGKEIT (ENERGIEKONZEPT)
- Vollwärmeschutz mit 3-fach Isolierglasfenster
- KfW 40 Standard mit QNG-Plus-Siegel
- Wärmeversorgung über Wasser-Wasser-Wärmepumpe mit Pufferspeicher
- Dezentrale Warmwasserversorgung über Hybrid-Trinkwasserstation
- Dezentrale Lüftung mit Wärmerückgewinnung
- PV-Anlage mit Eigenstromverbrauch und Überschusseinspeisung
BADAUSSTATTUNG
- hochwertige Sanitäreinrichtungen der Firmen Duravit, Kaldewei, Hansgrohe
- Handtuchwärmekörper mit Heizpatrone in den Hauptbädern
- Fußbodenheizung
- bodenebene Dusche
DIGITALISIERUNG
- Netzwerk Anschlussdosen von Internet und TV in allen Wohn- und Schlafräumen
KOMFORT
- Fußbodenheizung mit Einzelraumregelung in allen Wohnräumen
- komfortable lichte Raumhöhe von ca. 2,50 m
- große Fenster für viel Licht in den Wohnungen
- elegante Fußbodenbeläge/Einstab-Parkett
- elektrische Rolläden
Sonstige Angaben
*Klimafreundlicher Neubau als Energieeffizienzhaus 40 mit QNG-Plus-Siegel: Qualifiziert für zinsgünstige KfW-Förderkredite und Sonderabschreibungsmöglichkeiten für Kapitalanleger.Beratung und provisionsfreier Vertrieb durch:
Tel.: 07665/ 934 58 299
Benzstraße 22
79232 March-Hugstetten
www.projektbau-freiburg.de
Die grafischen Darstellungen, Illustrationen und Visualisierungen dienen dazu, Ihnen einen Eindruck über unser Projekt zu vermitteln. Einen Anspruch auf absolute Detailtreue kann demnach nicht gewährleistet werden. Genaue Details können nur aus den Architektenplänen entnommen oder aus der separat erhältlichen Baubeschreibung herausgelesen werden. Möblierungen sind nur ein Einrichtungsvorschlag und sind im Angebot nicht enthalten. Die Balkone und Terrassen fließen zur Hälfte in die Wohnflächenberechnung ein. Die Flächenangaben sind zudem circa-Angaben und können erst mit der Fertigstellung des Objektes genau ermittelt werden. Als Rechtsgrundlage gilt allein der notariell abgeschlossene Kaufvertrag.
Ansprechpartner
Herr Michael Metzger
Benzstraße 22
79232 March
+49 7665 93458299
+49 179 7396639
m.metzger@projektbau-freiburg.com
*Ja, ich habe die Datenschutzerklärung dieser Seite zur Kenntnis genommen und bin ausdrücklich damit einverstanden, dass die von mir angegebenen Daten elektronisch erhoben und gespeichert werden. Meine Daten werden dabei nur streng zweckgebunden zur Bearbeitung und Beantwortung meiner Anfrage genutzt! Hinweis: Sie können Ihre Einwilligung jederzeit für die Zukunft per E-Mail an info@projektbau-freiburg.de widerrufen.
Datenschutzhinweis: Die von Ihnen ggf. mitgeteilten personenbezogenen Daten dienen ausschließlich der Abwicklung Ihrer Anfragen und Nachrichten. Die eingegebenen Daten werden erst nach der Bestätigung des Buttons „Absenden“ übermittelt. Es erfolgt keine Zurverfügungstellung an Dritte! Die von Ihnen im Kontaktformular eingegebenen Daten verbleiben bei uns, bis Sie uns zur Löschung auffordern, Ihre Einwilligung zur Speicherung widerrufen oder der Zweck für die Datenspeicherung entfällt (z.B. nach abgeschlossener Bearbeitung Ihrer Anfrage). Zwingende gesetzliche Bestimmungen – insbesondere Aufbewahrungsfristen – bleiben unberührt. Weitere Informationen entnehmen Sie bitte unserer Datenschutzerklärung.